モデルハウス
北野展示場
Kitano Showroom

つなぐモデルハウス"とこしえ"
京都・上七軒の地で30年にわたり、
「京都の暮らし」に寄り添ってきた私たちの原点ともいえる拠点です。
モデルハウス「とこしえ」のテーマは、“つなぐ”。
今出川七本松、上七軒の「七」にちなみ、7つの“つながり”をコンセプトに2018年に誕生しました。
2019年度グッドデザイン賞を受賞。
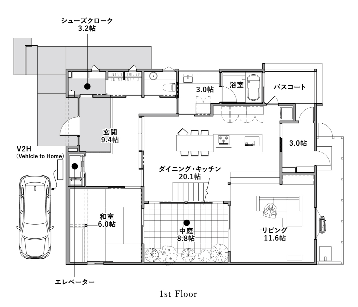
京都初、V2HとHEMSを連携した災害対応型モデルハウスとして、
停電デモで“もしも”の安心も体感いただけます。
京町家の伝統と現代の快適性を融合させ、土間や中庭、和室などに京都らしい豊かさが息づく住まいです。
こんな方におすすめRecommend
京都らしい住まいを建てたい方
町家の魅力を現代の暮らしに取り入れたい方
災害への備えや、エネルギー活用に関心のある方
素材や職人の手仕事にこだわりたい方

見どころポイントPoint

外観
梅のシンボルツリーを配した外構計画。大通り沿いでも視線を気にせず暮らせるよう、窓の位置や外構計画に配慮しました。

リビング
壁ではなく、スキップフロアでゆるやかに空間を区切る設計。漆和紙や大谷石など素材にもこだわり、エタノール暖炉が心地よい時間を演出します。

ダイニング
SE構法が叶える、吹き抜けのある大空間。SE構法により、木造でありながらダイナミックな空間を実現しました。

和室
手すき和紙の障子や聚楽壁など、京都の職人技が光る和室。明るすぎない陰影が、落ち着いた時間を生み出します。

中庭
高い壁で囲いながら、採光と通風を確保。家族でくつろげる、プライバシーに配慮したアウトドアリビングです。
建築データData
| 構造 | 耐震構法SE構法(重量木骨の家)2階建て |
|---|---|
| 建築面積 | 135.25 ㎡[40.91坪] |
| 建物開口 | 約10.1m |
| 奥行 | 約13.1m |
| 1F床面積 | 111.32 ㎡[33.67坪] |
| 2F床面積 | 83.82 ㎡[25.35坪] |
| 延床面積 | 195.14 ㎡[59.02坪] |
| 吹抜面積 | 9.93 ㎡[3.00坪] |


ギャラリーGallery
| 所在地 | 京都市上京区今出川通り元観音町469(今出川通り七本松南東角) |
|---|---|
| 営業時間 | 10:00-18:00 |
| 定休日 | 水曜日(祝日は除く) |
| 電話番号 | 075-463-1000 |